Grüzefeld

Viel Grün und Blick in die Ferne inbegriffen

Wer im Grüzefeld wohnt, ist dort gerne zuhause. Unsere Bewohner:innen schwärmen vom parkähnlichen Garten mit den grossen Bäumen und der Weite zwischen den abgestuften Gebäuden. Von einigen Balkonen sieht man über die ganze Stadt. Andere bieten Ausblick über die Allmend Grüzefeld mit Spazierwegen und schmuckem Weiher. Zu jeder Jahreszeit tummeln sich Gross und Klein auf dem Spielplatz.

Im Sommer trifft man sich zum Grillplausch an der Feuerstelle, während die Kinder im Pool neben dem Strahleggsaal planschen. Letzteren können die Bewohner:innen für Feste mieten, wenn es im eigenen Wohnzimmer mal zu eng wird. In einem Waschsalon stehen zusätzliche Waschmaschinen und Tumbler zur Verfügung, und in einem kleinen Nähatelier kann man sich die Kleidung flicken, nähen oder bügeln lassen. Zudem koordiniert und unterstützt Sonja Bolla (Siedlungsarbeit) verschiedene Aktivitäten in der Siedlung und ist Ansprechperson für Anliegen zum Zusammenleben. Der Bus Richtung Stadtzentrum fährt praktisch vor der Tür, eine Velofahrt in den Coop Grüze, die Eishalle Deutweg und zum Schulhaus Gutschick dauert je zwei Minuten. Alle Wohnungen verfügen über Balkon, Sitzplatz oder Wintergarten, die grösseren sogar über zwei Nasszellen. In der Tiefgarage gibt es einen Ladeparkplatz für Elektroautos, der reserviert werden kann.

Porträt

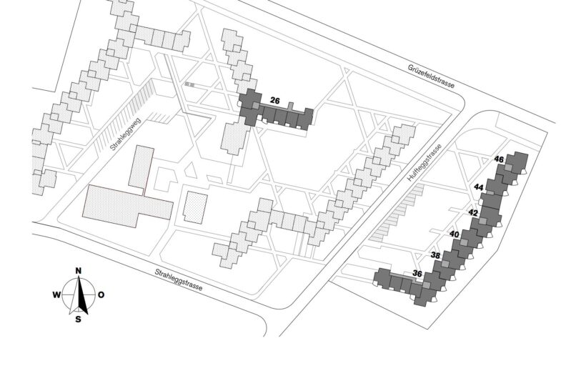
AdresseHulfteggstrasse 36/38/40/42/44/46, Strahleggweg 26
Ort8400 Winterthur
Anzahl Wohnungen114
Anzahl Zimmer2 bis 5.5
Miete816 bis 1545 Franken

Besonderes

  • Kindergärten und Primarschule im Umkreis von 500 Metern
  • Siedlungsraum, Kinderkrippe und Arztpraxis in der Siedlung
  • Mit dem Velo zum Bahnhof Hegi: 3 Minuten
  • Mit dem Bus zum Bahnhof Oberwinterthur: 5 Minuten
  • Einkaufszentren Grüze mit Auto (4 Minuten) oder Bus (6 Minuten) gut erreichbar
  • Spazierwege nach Wiesendangen und entlang der Eulach nach Elsau gleich vor der Haustür
  • Gartenbeete
  • Reservierbarer Ladeparkplatz für Elektroautos

Bilder von der Siedlung

Ansprechpersonen für diese Siedlung